Sign In / Register

Find us on...

Share on...

Dashboard

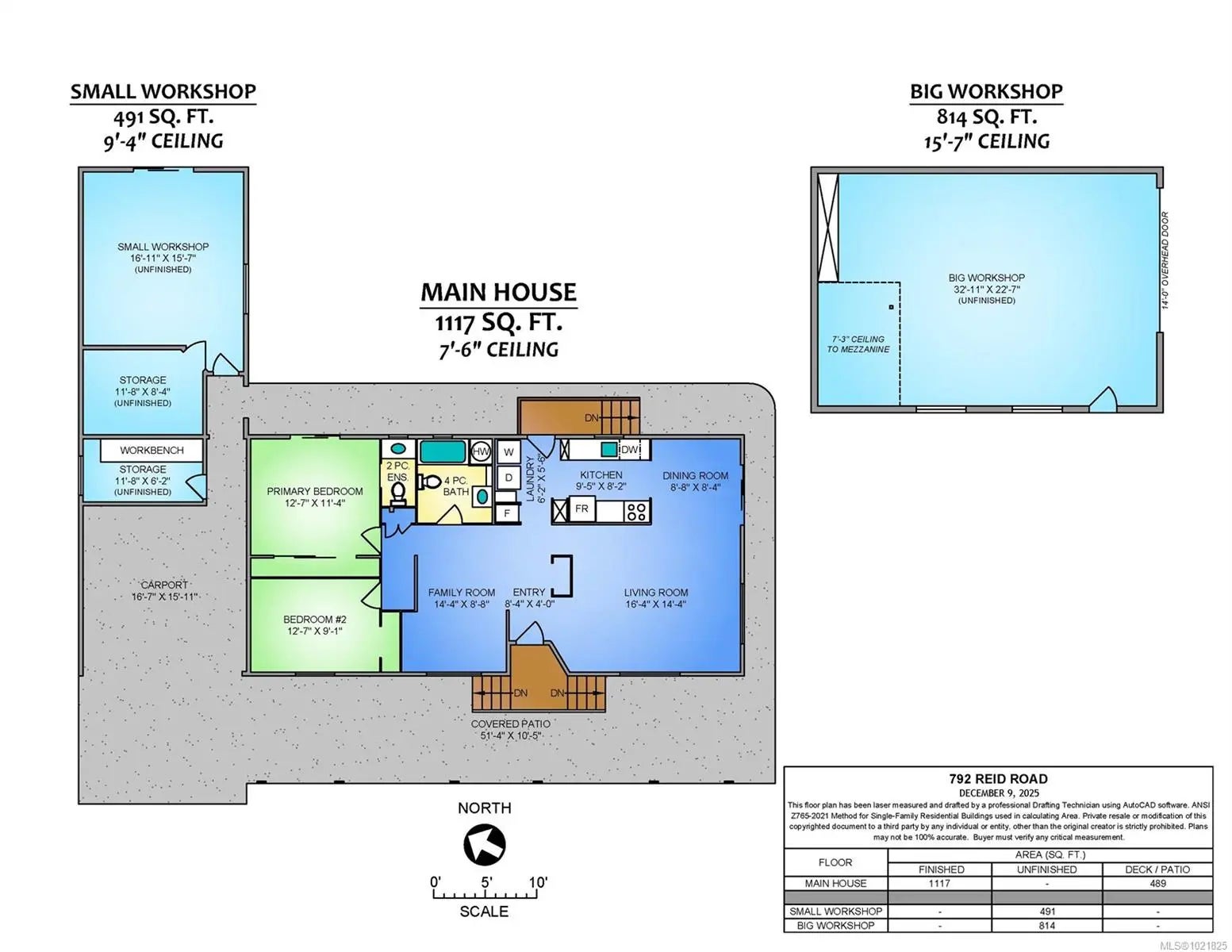
792 Reid Rd, Parksville, BC, V9P 2E6

  • 2 Beds
  • 2 Baths
  • 1,117 Sqft
  • .61 Acres
  • 2 Beds
  • 2 Baths
  • 1,117 Sqft
  • .61 Acres

New Search X

792 Reid Rd

– $650,000

Calling All Visionaries, Dreamers, and Bold Thinkers! Welcome to 0.61 acres of pure potential, where big ideas feel right at home. This property offers opportunity in spades for the buyer who sees not just WHAT IS, but what COULD BE. The existing double-wide mobile home is ready for a comprehensive renovation, making it an ideal project for someone with creativity, skills, and a willingness to roll up their sleeves. Stealing the spotlight is the huge shop with an overhead door, separate driveway, and 200 amp service, it's a dream setup for tradespeople, contractors, or anyone needing serious workspace. Whether it’s for business, hobbies, or building your next big plan, this shop delivers versatility and value. There are truly two paths forward: Revitalize the current home and enjoy a spacious property with room to grow or, Take the bigger-picture approach and explore the subdivision potential (second sewer connection already in place) and create something entirely new.

Essential Information

  • MLS® #1021825
  • Price$650,000
  • Bedrooms2
  • Bathrooms2
  • Square Footage1,117
  • Acres0.61
  • Year Built1974
  • TypeResidential
  • Sub-TypeManufactured Home
  • StatusActive
  • Taxes$3,358
  • Tax Year2025

Community Information

  • Address792 Reid Rd
  • AreaPQ French Creek
  • CityParksville
  • CountyNanaimo Regional District
  • ProvinceBC
  • Postal CodeV9P 2E6

Amenities

  • Parking Spaces4
  • ParkingCarport

Interior

  • HeatingForced Air, Oil
  • CoolingNone

Exterior

  • RoofAsphalt Torch On
  • FoundationPoured Concrete

Construction

Insulation: Ceiling, Insulation: Walls, Metal Siding

Additional Information

  • Date ListedDecember 15th, 2025
  • Days on Market55

Listing Office

Royal LePage Parksville-Qualicum Beach Realty (QU)

Please provide a valid email address.

NOTE: MLS® property information is provided under copyright© by the Victoria Real Estate Board. The information is from sources deemed reliable, but should not be relied upon without independent verification. The website must only be used by consumers for the purpose of locating and purchasing real estate.